Avenue fresnaye villa
معمار: Jenny Mills Architects
مساحت: ۲۳۴۹ متر مربع
سال: ۲۰۱۴
شهر: Cape Town

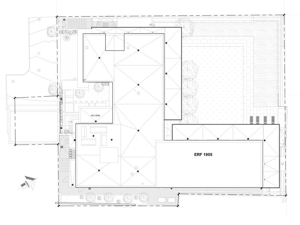
پروژهای در برگیرنده بنایی لوکس با خطوطی مدرن که فضا، مکان و مناظر را در آغوش کشیده است. ساختاری نامنظم از صفحات در ساخت بنا در ترکیب با شیشهها و کاشت درختان در اطراف و باغچه به چشم میخورد. خانهای در سه سطح زیرزمین با فضاهای انبار سراب، خانه سرایداری، اتاق فیلم، رختشویخانه، انباری و تاسیسات ، طبقه همکف شامل آشپزخانه، اتاق نشمین و ناهارخوری۷ و در بیرون از خانه پارکینگها و در طبقه اول اتاقهای خواب، سرویسها واتاقهای تعویض لباس.



این خانه به نظر میرسد در اطراف پلکان خود رشد کرده و فضاها در چیدمان ال شکل ساختمان ساختاری روان و سیال یافته اند. تفکیک فضایی بین حریم عمومی و خصوصی در خانه دیده میشود که بین سطح ۱ و ۲ ساختمان با جدا سازی اتاقهای استراحت و تعویض لباس از اتاقهای نشیمن صورت گرفته است. این فضای ال شکل با باغچه و حیاط به مستطیلی کامل تبدیل شده که این حیاط را میتوان مرکز ساختمان نامید.



در هنگام ورود و حرکت در فضای بیرونی بنا، با انواع مختلفی از کاشت گیاهان روبه رو شده و احساس متفاوتی از صداها، بوها و تغییرات نور و سایه مشاهده میشود که حسی متفاوت از مکان را در هنگام ورود به خانه در برابر فرد قرار میدهد. ورودی که آمیخته شده با گیاهان و باغچه است. با ورود به خانه بازی با نور و سایه پنجرههایی با قاب بندی منظرههای دریا و حیاط خود نمایی میکنند. از طرفی میتوان در طبقه همکف منظرهای از استخر خانه را با دیوارهای سبز دید که جای دید به دریا و شهر را به خوبی پر میکنند. درون خانه با مصالحی چوبی با رنگ گرم ، سنگهای مرمری و دیوارهای با رنگهای ملایم پوشیده شده است. آشپرخانه با فضایی برای فعالیتهای خانوادگی طراحی شده است که میتواند فضایی برای تعامل اعضای خانواده باشد.


