معماران اسپدو و خانه ی اِی اِن وای؛ مدرنیسم بومی
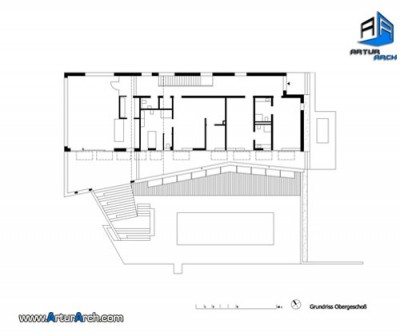
ویلای پی آمده در کشور اتریش بر سیاق سوگرایی غربی طبقه ی اول خود طراحی شده است. این طبقه ی معلق به عنوان یک فرم ظریف و سبک از زمین بلند شده است. تمام نمای غربی از بالاترین طبقه با شیشه پوشش یافته اند, و اتاق نشیمن, ناهار خوری و آشپزخانه را در خود جای می دهد. پلکان به حوزه ی نشیمن منتهی می شود که بر چشم اندازی جذاب تأکید دارد. اتاق خواب اصلی و دو اتاق برای بچه ها در طبقه ی اول به سوی جنوب جهت گیری شده اند.

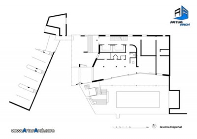
همه ی اتاق ها به تراس متصلند و این امکان را برای ساکنین خود فراهم می آورد که به استخر و باغ خصوصی دسترسی آسانی داشته باشند. اصلی ترین شاخصه ی این بنا اتصال بین فضای درون و فضای بیرونی است؛ یک اتصال مستقیم از راه پله به باغ. در زیرزمین بخش ورزشی , تناسب اندام, دفتر و پارکینگ جای گرفته اند. بخش ورزشی ساختمان در جهت جنوب به سمت استخر جهت گیری شده است. ساختمان با توجه به شریان های آبی موجود در شمال سایت ابتنا یافته است.



این ویلا در قامت بنایی شکل یافته یک فضای بزرگ آزاد در جنوب تولید می کند. فضای خارجی در منطقه های مختلف ناحیه بندی شده اند. در بخش شمال غربی ساختمان حیاط خلوت به عنوان یک فضای عمومی ظهور یافته است. ساختمان معلق ورودی خانه را پوشش می دهد. یک فضا در جهت شرق در همان سطح به عنوان طبقه ی اول ساختمان درجبهه ی پشتی بنا شکل گرفته است؛ فضایی برای باغ آشپزخانه یا محلی به منظور آویزان کردن البسه. در جبهه ی جنوبی یک مکان صمیمی توسط تراس بندی و فضاهای دنج محصور ایجاد شده است. در سایتی که به بخش ورزشی از قسمت زیرزمین مرتبط می شود.




