کتابخانه و خانه هنر و فرهنگ Vennesla (معماران نروژی ) (هلن و سخت)
کانسپت اصلی در روند طراحی فضای داخلی این کتابخانه از ۲۷ دنده همچون اسکلت چوبی ریتمیک شکل گرفته است. سبک این کتابخانه عمومی به سبک Gaudiesque بوده و تیرهای چوبی، هنرمندانه از کف زمین شروع شده و به سقف رسیده سپس در سمت دیگر بر روی زمین می نشیند

عناصر ساختاری کتابخانه ایجاد هویت زیبایی شناسی پویایی معماری را به ارمغان آورده است.

کانسپت :
کانسپت اصلی در روند طراحی فضای داخلی این خانه از ۲۷ دنده همچون اسکلت چوبی ریتمیک شکل گرفته است. سبک این کتابخانه عمومی به سبک Gaudiesque بوده و تیرهای چوبی، هنرمندانه از کف زمین شروع شده و به سقف رسیده سپس در سمت دیگر بر روی زمین می نشیند

ریز فضاها :
خانه فرهنگ جدید Vennesla شامل ریز فضاهای : ۱- کتابخانه ۲- کافه ها ۳- مکان های ملاقات و قسمت اداری ۴- کلاس های آموزشی، میباشد .




هر دنده شامل پرتو چند لایه ستون و کانالهای تهویه هوا و شیشه خم که نور را وارد فضا می کند.

شاخصه های اصلی در طراحی معماری :
۱- ورودی اصلی شاخصی که از یک دنده مربع شکل می باشد.
۲- حفظ انرژی و کاهش نیاز به انرژی برای هر سه ساختمان را از طریق مفهوم infill و صرفه جویی در اتلاف انرژی طبق استانداردها.
۳- هماهنگی در عناصر اصلی معماری با مبلمان برای نمایان کردن یک فضای فرهنگی شهر.


مراحل طراحی

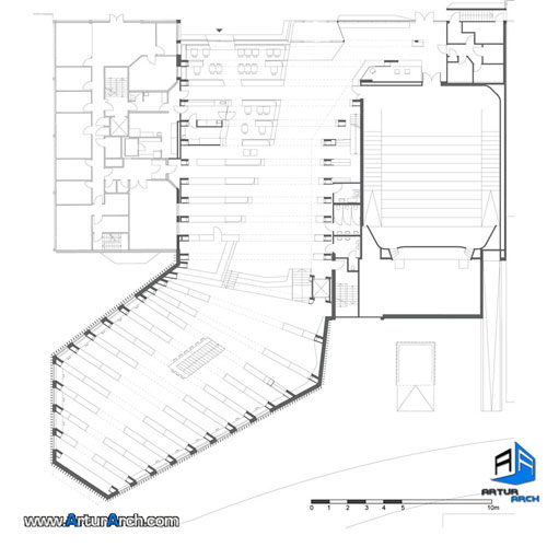
سایت پلان

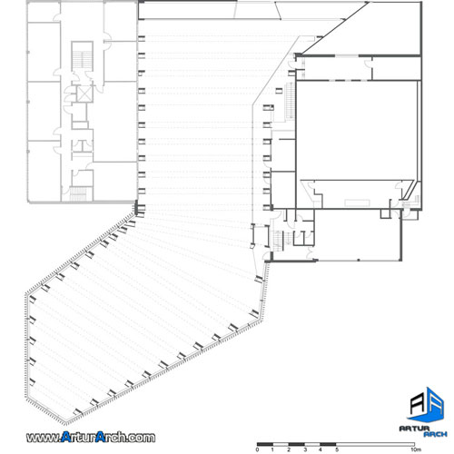
پلان ها



جزئیات


