پرش به محتوای اصلی

موزه هنر فیگه (Figge Art Museum)

Figge-Art-Museum

داونپورت ، لووا، امریکا، ۱۹۹۹ تا ۲۰۰۵- ۱۰۰۰۰ مترمربع

 

طراحی موزه فیگه

مرکز داونپورت، واقع در سواحل می سی سی پی در مرز شرقی آیوا، از بسیاری از مشکلات بومی شرهای امریکا رنج می برد. در طول این سال ها این منطقه شاهد خروج بسیاری از جمعیت مسکونی و کسب و کار خود بوده است.

design musum figge

در تلاش برای دادن نیرویی تازه به منطقه و بازسازی یک اتصال به رودخانه، جانمایی دوباره و استقرار مجدد موزه هنر داونپورت (تغییر نام یافته به موزه هنر فیگه) به عنوان کاتالیزوری در برنامه بازسازی شهر تعریف شد.

طراحی معماری موزه

در تحقق پذیری امید ساخت بناهایی شاخص برای شهر جدید، طراحی موزه هنر فیگه به سمت یک سازه یکپارچه شیشه ای متمایل شد که با قدرت بتواند به عنوان یک نشانه شهری برای داونپورت عمل کند.

Figge_Art_Museum

معماری آن بر مبنای ایده ای از بلوک حجمی ساده ای است که به وسیله سطوح مات و شفاف پوشیده شده است . این سطوح شیشه ای با بندهای افقی پوشیده شده اند که برای تعریف المان های شکلی موزه، تراکم آنها تغییر می کند.

museum

در شرایط شهری  به نظر می رسد طراحی این بنا با پر کردن نیمه ای از بلوک شهری خالی قدیمی، از گریدهای شهر قدیمی حمایت می کند.

طراحی موزه فیگه

طراحی داخلی موزه

Figge_Art_Museum

Figge_Art_Museum_enterior

طراحی معماری موزه

Figge_Art_Museum_site

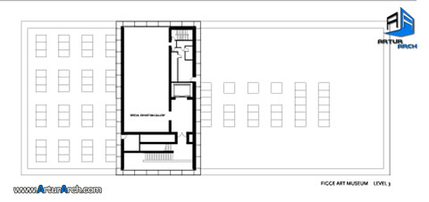
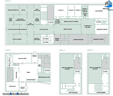
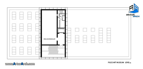
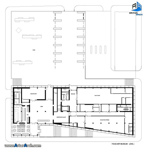
پلان موزه

plan museum

پلان موزه فیگه

پلان موزه

پلان موزه www.tarazarch.com

دیدگاهتان را بنویسید

نشانی ایمیل شما منتشر نخواهد شد. بخش‌های موردنیاز علامت‌گذاری شده‌اند *