مرکز فرهنگی پل کله
هدف ، تسخیر روح مجسمه ساز ، به وسیله ی کار کردن بر روی خاک و نشانه های رمزی است . بنابراین موزه شکل واقعی تپه ها را خواهد گرفت در حالی که تا آنجا که می تواند تابع حومه ی شهر است . در نتیجه به حس زیبایی و بی مرزی فراخوانده شده به وسیله ی کوه ها آسیبی نخواهد رسید . موزه و مرکز فرهنگی به صورت اساسی با کار کلی هماهنگ خواهد بود
معمار: رنزو پیانو
مکان : سوئیس ، برن
سال ساخت: ۲۰۰۵-۱۹۹۹
سبک معماری: معماری های تک
zentrum paul klee در Bern کشور سوئد طراحی شد تا تجلیلی واقعی از این هنرمند شود . این بنا که در سایتی بیرون از شهر، روی تپه هایی که به نرمی پیچ می خورند٬ با پس زمینه ای از کوه های آلپ قرار گرفته است .


تصویر نماهای خارجی مجموعه

نوارهای پوسته خارجی


چگونگی شکل گیری و فونداسیون نوارها
خواهد بود به وسیله ی نمای غربی که نور به داخل خواهد آمد ودر درون اتاق ها به وسیله ی سیستم صفحات شفاف کننده( فراتاب)،برای ساختن نورملایمترپخش خواهدشد



مراحل طراحی از کانسپت تا طرح اصلی

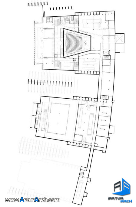
پلان طبقه همکف

پلان طبقه اول


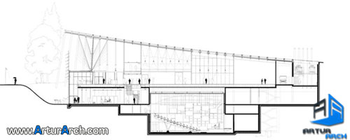
برش ها


نماها