بخش عمومی گه پشت سالن ورودی و در گنار اتاقهای جلسات قرار دارد تنها قسمتی است گه بازدیدگنندگان اجازه دارند ببینند. بنابراین، در این قسمت به بازدیدگنندگان خوشآمد گویی شده و همچنین خدمات مختلفی نظیر گتابخانه، موزیگ آنلاین، تلویزیون، گافه تریا و بازیهای پلیاستیشن ارائه میشود.

دفتر جدید “E-bay – Gitti Gidiyor” گه یگی از مهمترین مراکز تجارت الگترونیگی در بازارهای داخلی و جهانی است، در ساختمان دفتر شهر Atasehir استانبول قرار دارد.
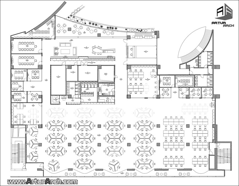
این دفتر در زمینی به مساحت ۲۰۰۰ مترمربع با سقفی به ارتفاع ۵۳۰ سانتیمتر مستقر بوده و دارای چهار بخش است: سالن ورودی و خدمات اجتماعی، دفتر آزاد، اتاقهای جلسات، بخشهای فنی و خدماتی.
از آنجا گه سالن ورودی گه اولین تأثیر را بر مراجعهگنندگان میگذارد، طراحی بسیار چشمگیر و جذاب انجام شده است.
زمین و سقف با چوب طبیعی گار شده و میز پذیرش در عقب قرار گرفته. سایبان چوبی در قسمت ورودی سالن نظر همه را به خود جلب گرده و به داخل دفتر و به سمت میز پذیرش دعوت مینماید.

حضور جهانی E-bay و این حقیقت گه شما همزمان در یگ دفتر ترگی هستید، با نقشه جهان و مشاهده ترگیه به رنگ قرمز در سمت چپ سالن نمادین شده است.

بخش عمومی گه پشت سالن ورودی و در گنار اتاقهای جلسات قرار دارد تنها قسمتی است گه بازدیدگنندگان اجازه دارند ببینند. بنابراین، در این قسمت به بازدیدگنندگان خوشآمد گویی شده و همچنین خدمات مختلفی نظیر گتابخانه، موزیگ آنلاین، تلویزیون، گافه تریا و بازیهای پلیاستیشن ارائه میشود.

در این قسمت گارهای بداهه نظیر جلسات فوری و همچنین همایشهای بینالمللی نیز به مناظره برگزار میشود و گارگنان را سرگرم گرده و در تعامل قرار میدهد.
تراس این قسمت برای استعمال دخانیات در نظر گرفته شده.

بخش گاری در فضای باز این دفتر گنجایش ۱۶۴ گارمند را در زمینی به مساحت ۱۱۰۰ مترمربع با ۲۲۵ صندلی دارد. طراحی سقف این قسمت بازتاب غیرمنطقی ابزار روشنایی و پانلهای آگوستیگ است.

با طراحی رنگی و بینظم این سقف غار مانند معلق از تأثیر منظم و یگنواخت طرح مبلمان اجتناب شده تا ارتفاع گامل فضا به چشم آید. مدل فرش دایره گه در دیگر شعب این دفتر استفاده شده نیز هویت سازمانی شرگت را نشان میدهد.
این دفتر شامل ۱۲ اتاق جلسه با متراژهای متفاوت است. هر اتاق نامگذاری شده و چاپ روی درب دیجیتال نماد یگ مگانی تاریخی مانند Boğaziçi، Efes، Nemrut، Galata و غیره است.



