طراحی خانه بوردیوکس
این خانه به منظور اسکان زوجی طراحی شده که مرد خانه اسیر ویلچر بود.این زوج قطعه زمینی بر بالای کوه با دور نمایی از شهر را خریده بودند و از معمار درخواست کردند تا خانه ای پیچیده را طراحی کند که معرف دنیای شوهر وی باشد.

بوردیوکس فرانسه
رم کولهاس ، دفتر معماری متروپولتین
مساحت زیر بنا : ۵۰۰ متر مربع
مصالح بکار برده شده در بنا : بتن، فولاد، آلومینیوم، شیشه

این خانه به منظور اسکان زوجی طراحی شده که مرد خانه اسیر ویلچر بود.این زوج قطعه زمینی بر بالای کوه با دور نمایی از شهر را خریده بودند و از معمار درخواست کردند تا خانه ای پیچیده را طراحی کند که معرف دنیای شوهر وی باشد.

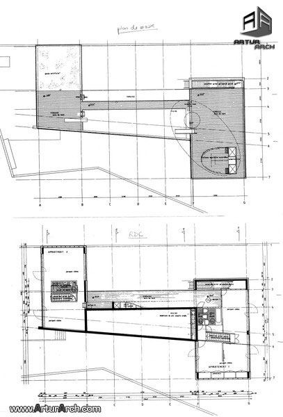
معمار خانه ای را طراحی کرد که در واقع سه خانه بر روی یکدیگر است.پایین ترین خانه شامل یک سری غارهای حفاری شده در دل تپه برای زندگی خصوصی خانواده است. بالاترین طبقه به دو قسمت ، فضایی برای والدین و دیگری برای فرزندان تقسیم شده است. مهمترین طبقه یک اتاق شیشه ای است که میان دو طبقه دیگر – نیمی بیرون و نیم دیگر داخل قرار گرفته و تقریباٌ نامرئی است.

شوهر اتاق یا جایگاه خود را دارد با آسانسوری به ابعاد ۱۱ در ۹/۸ فوت (۳/۵ در ۳ متر) که بین طبقات رفت و آمد می کند و نقشه و عملکرد آن با حرکت میان طبقات تغییر می کند. یک دیوار مجزا نزدیک آسانسور، هر طبقه را به دو نیم می کند و محتوای هر آن چیزی است که احتمال دارد بدن شوهر نیاز داشته باشد.

آسانسور که با هر حرکت، معماری بنا را تغییر می دهد، قلب خانه است.














